CONTATTI
SEDE OPERATIVA
SEDE LEGALE
Via Cavallo, 105
45021, Badia Polesine (RO)
Via Mazzini, 14
46100, Mantova (MN)
La Migliore Tecnologia al Vostro Servizio

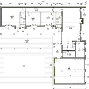
Superficie costruita 240m2 - Copertura a falde - Tecnologia Steel Frame

Casa di campagna indipendente con tetto inclinato e struttura in Light Steel Frame. Questa abitazione a basso consumo energetico si sviluppa su un piano solo con: un'ampia zona giorno con cucina, 1 camere da letto con bagno padronale, due camere, un servizio, una lavanderia, locale tecnico e garage doppio. A completare la soluzione un porticato che si apre nel retro a uno spazio dove poter avere il giardino, la pergola o la piscina.








SERREMAR ITALIA ritiene che tale modalità di costruzione sia ottimale, nonché vincente specialmente nel mercato estero, maggiormente aperto a nuove metodologie innovative di costruzione. Le caratteristiche di leggerezza e flessibilità permettono l’utilizzo del nostro prodotto sia nelle nuove costruzioni, residenziali e non, sia negli ampliamenti e sopraelevazioni. Il nostro prodotto consente di raggiungere ottime prestazioni promuovendo un elevato risparmio energetico e un alto grado di eco compatibilità attraverso un prodotto 100% riciclabile come l’acciaio.
CONTATTI
SEDE OPERATIVA
SEDE LEGALE
Via Cavallo, 105
45021, Badia Polesine (RO)
Via Mazzini, 14
46100, Mantova (MN)
La Migliore Tecnologia al Vostro Servizio