CONTATTI
SEDE OPERATIVA
SEDE LEGALE
Via Cavallo, 105
45021, Badia Polesine (RO)
Via Mazzini, 14
46100, Mantova (MN)
La Migliore Tecnologia al Vostro Servizio

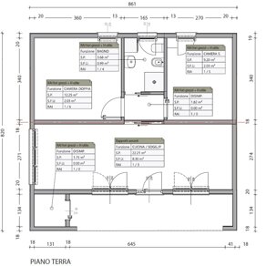
Superficie costruita 70 m2 - Copertura a falde - Tecnologia Steel Frame

Questa abitazione di una solo piano dispone di un'accogliente zona soggiorno-cucina, una camera matrimoniale, una camera singola, un bagno e un portico d'ingresso. Inoltre, dispone di un locale tecnico per riporre attrezzi e macchinari. E' il luogo perfetto per godersi la tranquillità e il comfort in famiglia!
Vista fronte
Vista fronte








SERREMAR ITALIA ritiene che tale modalità di costruzione sia ottimale, nonché vincente specialmente nel mercato estero, maggiormente aperto a nuove metodologie innovative di costruzione. Le caratteristiche di leggerezza e flessibilità permettono l’utilizzo del nostro prodotto sia nelle nuove costruzioni, residenziali e non, sia negli ampliamenti e sopraelevazioni. Il nostro prodotto consente di raggiungere ottime prestazioni promuovendo un elevato risparmio energetico e un alto grado di eco compatibilità attraverso un prodotto 100% riciclabile come l’acciaio.
CONTATTI
SEDE OPERATIVA
SEDE LEGALE
Via Cavallo, 105
45021, Badia Polesine (RO)
Via Mazzini, 14
46100, Mantova (MN)
La Migliore Tecnologia al Vostro Servizio