CONTATTI
SEDE OPERATIVA
SEDE LEGALE
Via Cavallo, 105
45021, Badia Polesine (RO)
Via Mazzini, 14
46100, Mantova (MN)
La Migliore Tecnologia al Vostro Servizio

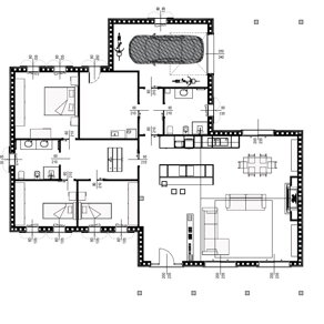
Superficie costruita 190 m2 - Tetto a falde - Tecnologia Steel Frame

Spaziosa casa dal design tradizionale composta da 3 camere, 2 bagni e un'ampia zona giorno. Si completa con un garage doppio, un locale tecnico lavanderia e due porticati. Tetto a doppia falda in travetti lignei e ottime prestazioni energetiche .
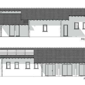
Vista fronte
Vista fronte








SERREMAR ITALIA ritiene che tale modalità di costruzione sia ottimale, nonché vincente specialmente nel mercato estero, maggiormente aperto a nuove metodologie innovative di costruzione. Le caratteristiche di leggerezza e flessibilità permettono l’utilizzo del nostro prodotto sia nelle nuove costruzioni, residenziali e non, sia negli ampliamenti e sopraelevazioni. Il nostro prodotto consente di raggiungere ottime prestazioni promuovendo un elevato risparmio energetico e un alto grado di eco compatibilità attraverso un prodotto 100% riciclabile come l’acciaio.
CONTATTI
SEDE OPERATIVA
SEDE LEGALE
Via Cavallo, 105
45021, Badia Polesine (RO)
Via Mazzini, 14
46100, Mantova (MN)
La Migliore Tecnologia al Vostro Servizio