CONTATTI
SEDE OPERATIVA
SEDE LEGALE
Via Cavallo, 105
45021, Badia Polesine (RO)
Via Mazzini, 14
46100, Mantova (MN)
La Migliore Tecnologia al Vostro Servizio

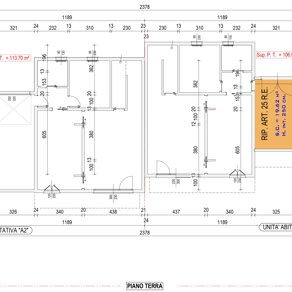
Superficie Costruita 470m2 - Copertura a falde - Tecnologia Steel Frame

Bifamiliare dalle generose metrature e dallo stile moderno che si sviluppa su due livelli. Ogni abitazione presenta un generoso soggiorno, cucina separata, dispensa, bagno, lavanderia e garage al piano terra. Mentre al piano primo troviamo 3 camere matrimoniali e doppie, due bagni e un'ampia terrazza. Le grandi aperture in entrambi i piani offrono un'ottima luminosità e continuità tra interno e esterno.








SERREMAR ITALIA ritiene che tale modalità di costruzione sia ottimale, nonché vincente specialmente nel mercato estero, maggiormente aperto a nuove metodologie innovative di costruzione. Le caratteristiche di leggerezza e flessibilità permettono l’utilizzo del nostro prodotto sia nelle nuove costruzioni, residenziali e non, sia negli ampliamenti e sopraelevazioni. Il nostro prodotto consente di raggiungere ottime prestazioni promuovendo un elevato risparmio energetico e un alto grado di eco compatibilità attraverso un prodotto 100% riciclabile come l’acciaio.
CONTATTI
SEDE OPERATIVA
SEDE LEGALE
Via Cavallo, 105
45021, Badia Polesine (RO)
Via Mazzini, 14
46100, Mantova (MN)
La Migliore Tecnologia al Vostro Servizio